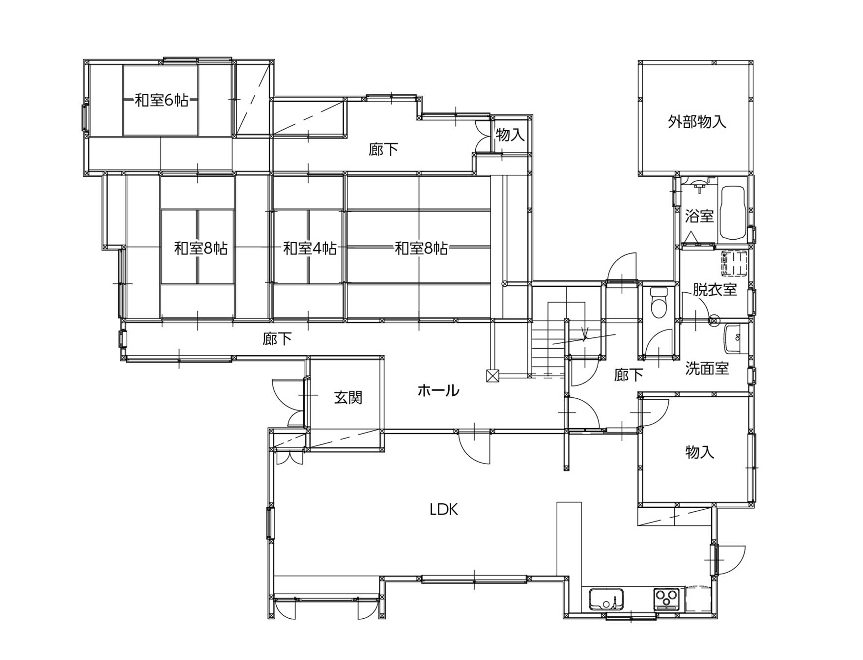
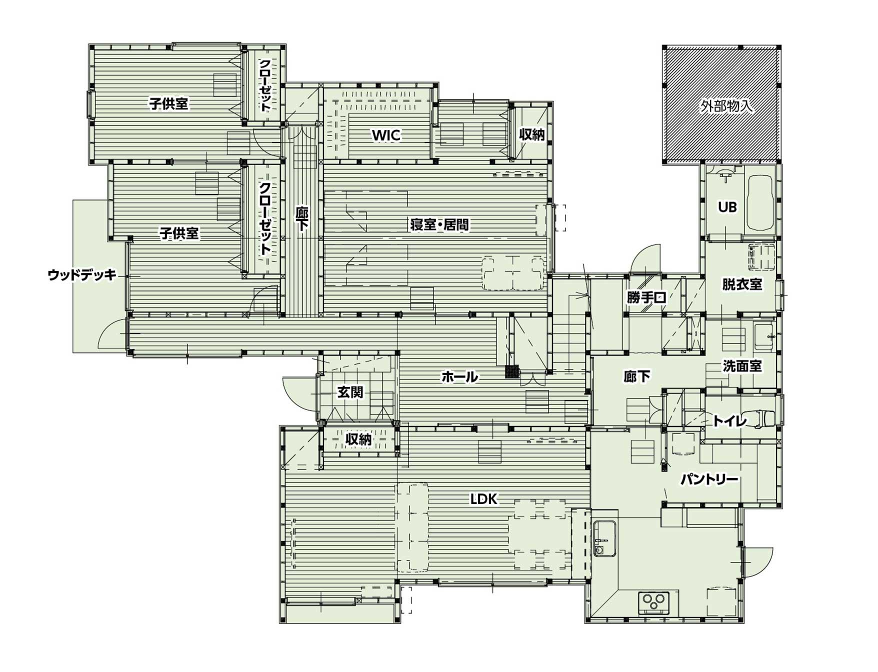
下伊那郡某様邸 (指示通り)khousing@webmanager2026-03-03T14:56:05+09:00 下伊那郡某様邸変化する家族スタイルに合わせたリフォーム家族構成 2世帯6人 建物1階面積48坪 改装面積45.8坪 Before 1階平面図 既存建物内観玄関リビングリビングキッチンキッチン I型キッチン和室8帖①和室8帖②和室6帖脱衣洗面トイレ脱衣洗面浴室家族の皆さんが壁に書いた思い解体工事基礎工事内装工事AfterAfter 1階平面図 大黒柱を活かした玄関充実した収納・スタイリッシュな玄関ワンフロアの広々したLDK使い易いL型対面キッチンパントリー 収納する物に合わせられる可動棚家事動線を考えたキッチン寝室・居間収納子供室①子供室②玄関上部玄関上部トイレ洗面台洗面台浴室 Share This Post, Choose Your Platform! FacebookXRedditLinkedInWhatsAppTumblrPinterest